近年来,国家城市更新战略明确要求从规模扩张转向品质提升,从增量开发转向存量提质。合肥市积极响应,出台《合肥市城市更新专项规划(2021-2035年)》,以宜居、韧性、智慧为核心目标,推动城市发展方式转型。
在此背景下,合肥楼市平台推出城市更新更美好系列策划,本期关注合肥龙岗片区,承载着老合肥工业记忆与市井烟火。

在合肥 “东进” 战略的宏伟蓝图下,瑶海区作为城市发展的 “东大门”,正经历着一场深刻的蝶变。而龙岗片区,这片承载着老合肥工业记忆与市井烟火的土地,无疑是瑶海城市更新浪潮中最受瞩目的 “主战场” 之一。
从散落的城中村、老旧的厂房,到即将崛起的现代化住宅、完善的配套设施,龙岗片区的每一次 “蜕变” 都牵动着无数合肥人的心。尤其是对于片区内的居民而言,拆迁安置关乎切身利益;对于购房者和投资者来说,片区的新房、二手房价格波动以及土地市场动态,是判断区域价值的重要依据;而对于城市规划者和建设者,更新周期的把控与参与主体的协同,直接决定着城市更新的效率与质量。

早在去年,瑶海区龙岗片区城市更新项目投资建设运营一体化招标计划,据悉,瑶海区龙岗片区分两个地块。
瑶海区龙岗片区一主要是对片区内孙小郢、何坝院、吴小郢、板桥杨小、杜坝院、东升、马岗永乐方郢、三小城中村、站塘城中村G、F地块、东七城中村、 朱小郢12个城中村地块进行拆迁改造。

涉及现状拆迁户数约3280户,安置人数约8406人,拆迁房屋面积约87.89万平方米,拆迁改造后可释放土地约868.21亩。
瑶海区龙岗片区二主要是对片区内朱砖井、新方郢、瓜子厂3个城中村地块进行拆迁改造。

涉及现状拆迁户数约579户,安置人数约1011人,拆迁房屋面积约19万平方米,征迁改造后可释放土地约130.38亩。
而根据今年年初合瑶征预告〔2025〕2号公告文件显示,拟征收土地位于龙岗街道筹备组大店社居委刘沟沿、刘小郢村民组内。

整个龙岗片区市场表现来看,板块主要还是以是周边地缘客群的优选之地,从合肥楼市高峰期来看,该片区在2021年成交3宗涉宅用地,楼面价接近9000元/㎡,相对比较稳定,且已有龙湖、伟星等多家房企进驻。该板块的土地成交集中在2021年,当年成交3宗涉住地块,楼面价接近9000元/㎡,2022年和2023年均出让2宗涉宅用地,但2023年成交的2宗纯居住用地楼面价都已经超过1万/㎡,且都达到了竞品质阶段,可见当时市场热度不低。

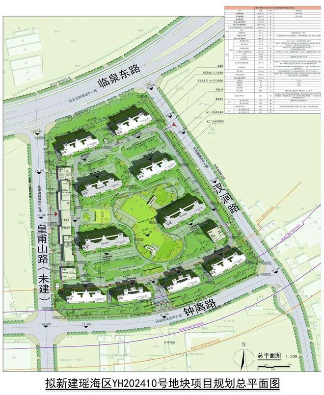
而在2024年年底合肥土拍中,合肥复兴置业和中建国际投资联合以底价竞得 YH202410 号地块,成交单价815万/亩,成交总价69584.7万元,成交楼面价5094元 / 平方米。地块位于瑶海区临泉东路以南、皇甫山路以东,面积85.38亩,为纯居住用地,容积率≤2.4。

在今年4月份,该宗地块规划出炉,项目规划10栋22-26F高层住宅,共1338套房源,该地块后期上市后将是龙岗片区唯一新计容项目。

再来看下片区内二手房情况,目前整个瑶海区二手房价格都相比比较低,而龙岗板块价格也是在区域中比较靠后的,截止目前,龙岗片区挂牌4284套房源,挂牌价格9300元/㎡。

整个片区挂牌价格超过1万/㎡的小区比较少,主要是一些品质次新房,主要集中靠近大众路,比如伟星长江赋挂牌价1.8万/㎡,龙湖春江郦城挂牌价1.5万/㎡,融悦四季挂牌价1.3万/㎡,另外沿郎溪路两侧,瑶海万达广场周边,比如万达华府挂牌价1.5万/㎡,郎溪上里挂牌价1.5万/㎡,其他小区挂牌价价格基本在7000-9000元/㎡,板块内二手房价差最高超1万/㎡,而整个板块内二手房成交价格在8480元/㎡。
2025 年瑶海龙岗片区的城市更新,既是对国家 “以更新促发展” 政策的积极响应,也受到合肥东部新中心建设利好。通过连片改造,片区不仅将告别 “城中村扎堆” 的旧貌,更将通过土地盘活、配套升级,实现从 “城市边缘” 到 “宜居新城” 的蜕变,为上万居民带来生活品质的提升。
对于房地产市场而言,更新带来的土地供应放量与配套完善,既缓解了城东住房供需矛盾,也推动了市场从 “低价竞争” 向 “品质竞争” 转型,为合肥楼市注入新活力。
第一房智库观点认为:2025 年是合肥城市更新 “由点及面” 的关键年,龙岗片区的实践具有典型意义 —— 其通过 “市场化安置 + 品牌房企参与 + 民生保障优先” 的模式,平衡了 “更新效率” 与 “居民利益”,为后续其他片区改造提供了可复制的经验。未来,随着各种配套落地,龙岗片区房地产市场将进入 “价值兑现期”,房价仍有稳步上涨空间,但需警惕开发节奏过快带来的供应过剩风险,建议政府加强土地出让节奏管控,确保市场平稳健康发展。